Két hőcserélős puffertartály - 2000 literes tartály, melegvíz tárolás céljára 110 °C maximális üzemi hőmérséklettel

Két hőcserélős puffertartály - 2000 literes tartály, melegvíz tárolás céljára 110 °C maximális üzemi hőmérséklettel
  • Két hőcserélős puffertartály - 2000 literes tartály, melegvíz tárolás céljára 110 °C maximális üzemi hőmérséklettel
  • Két hőcserélős puffertartály - 2000 literes tartály, melegvíz tárolás céljára 110 °C maximális üzemi hőmérséklettel

Két hőcserélős puffertartály 2000 literes

Két hőcserélős, nagy kapacitású puffertartály – hőszivattyús és napkollektoros rendszerek tökéletes kiegészítője

A TESY V 15/9 S2 2000 130 F46 P6 C típusú, 2000 literes puffertartály a legmagasabb hatékonysági igényeket is kielégíti a modern fűtési és hőtároló rendszerekben.
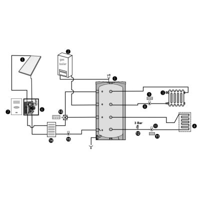
A kettős hőcserélős kialakítás lehetővé teszi két különböző hőforrás – például hőszivattyú és napkollektor – egyidejű csatlakoztatását, így a rendszer optimális energiahasznosítással működhet az év minden szakában.

A tartály ideális megoldás nagy hőigényű családi házakhoz, ipari létesítményekhez, társasházakhoz és központi fűtési rendszerekhez.
A kivehető, 100 mm vastag poliészter szigetelés magas szintű hőmegtartást biztosít, miközben könnyen eltávolítható karbantartás vagy szűk helyen történő telepítés esetén.
A C energiaosztály és a mindössze 183 W ΔT 45K hőveszteség garantálja a hosszú távú energiahatékony és környezetbarát működést.

Professzionális puffer ipari vagy nagy teljesítményű fűtési rendszerekhez

A két nagy teljesítményű hőcserélő összesen 7,2 m²-es hőátadó felületet biztosít, ami kiemelkedő hőleadási hatékonyságot eredményez még alacsony hőmérsékletű energiaforrások esetén is.
A 4,5 m²-es alsó hőcserélő általában a megújuló forrás (pl. napkollektor vagy hőszivattyú) csatlakoztatására szolgál, míg a 2,7 m²-es felső hőcserélő a kiegészítő hőtermelő (pl. kazán) számára biztosít hatékony hőátadást.

A tartály 95 °C maximális vízhőmérsékletre és 3 bar üzemi nyomásra tervezett, így hosszú élettartamú és biztonságos megoldást kínál zárt fűtési rendszerekhez.
A poliészter burkolat strapabíró, nedvességálló és esztétikus kivitelben készül, miközben segít minimalizálni a hőveszteséget.

Műszaki adatok és részletek

  • Modell: V 15/9 S2 2000 130 F46 P6 C

  • Kapacitás: 1822 liter

  • Energiaosztály: C

  • Szigetelés típusa: levehető poliészter szigetelés

  • Szigetelés vastagsága: 100 mm

  • Nettó tömeg: 386 kg

  • S1 hőcserélő felület: 4,5 m²

  • S2 hőcserélő felület: 2,7 m²

  • S1 hőcserélő kapacitás: 41,6 liter

  • S2 hőcserélő kapacitás: 25,2 liter

  • Hőveszteség ΔT 45K mellett: 183 W

  • Maximális üzemi hőmérséklet: 95 °C

  • Hőcserélők maximális hőmérséklete: 110 °C

  • Tartály névleges nyomása: 3 bar

  • Átmérő: 1300 mm

  • Termozsebek száma: 4 db

  • Felhasználás: két hőcserélős puffertartály fűtési rendszerekhez

  • Kompatibilitás: hőszivattyú, napkollektor, gáz-, biomassza- vagy vegyes tüzelésű kazán

A 2000 literes TESY puffertartály két hőcserélővel kimagasló teljesítményt kínál nagy volumenű hőtároláshoz és hatékony energiaelosztáshoz.
A két hőcserélőnek köszönhetően egyszerre több hőforrás is integrálható, így a rendszer mindig a legoptimálisabb energiaforrást használhatja fel.
A kivehető poliészter szigetelés és a négy termozseb pedig megkönnyítik a beüzemelést, karbantartást és precíz hőmérséklet-szabályozást.

Adatok

Hőcserélő:
2 hőcserélő
Űrtartalom:
2000 l
Típus:
Puffer tartály
Kivitel:
Álló
Bekötés:
90°
Gyártó:
Tesy
Szigetelés típus:
Levehető poliészter
Önnél lehet (raktárról):
2026. 04. 30.
Önnél lehet (külső raktárról):
2026. 06. 18.
CIKKSZÁM - Jeled + dátum + idő:
1202510101314
identifier_exists:
no
Beszerezhető - Csak nekünk:
Tesy Ltd.
Link-1 - Csak nekünk:
V 15/9 S2 2000 130 F46 P6 C
Beszerzési 1 szállidő - Csak nekünk:
60
Beszerzési 1 deviza - Csak nekünk:
EUR
869 000 Ft
Irány a webshop
    Irány a webshop

    Iratkozz fel azhírlevélre

    és értesülj elsőként újdonságainkról, akcióinkról!